(11031_KSB) Продається Двокімнатна квартира Дніпровський район, вулиця Сосюри Володимира, 6, метро Дарниця, ЖК Дніпровська мрія (будується)

56 500 $
цікавий
  • Кімнат: 2
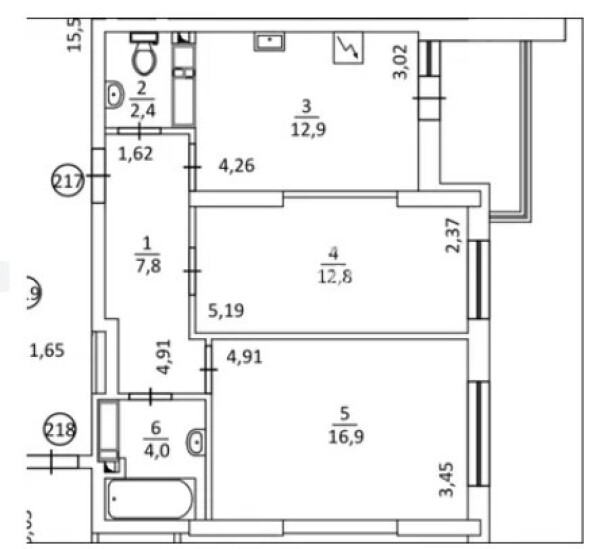
  • Площа (загальна/житлова/кухні): 62/30/13 м2
  • Поверх/Поверховість: 24/26
  • Планування: стандартне
  • Стан: від будівельників без опорядження

Продається двокімнатна квартира. Дніпровський район, вулиця Сосюри Володимира, 6, метро Дарниця, ЖК Дніпровська мрія (будується)

ПРОДАЄТЬСЯ 2- кімнатна квартира на 24 поверсі в 2 секції.

Вікна виходять на Дарницьку площу !!!

На вулиці Володимира Сосюри 6.
Полоща 62м.кв., 50000$ по перепоступці !!!!

В новому ЖК ДНІПРОВСЬКА МРІЯ .

Зручне та функціональне планування!!!

Дніпровський р-н,
Стара Дарниця, 500 м від Дарницької площі

Інфраструктура:
Розвинена, поруч спортивні заклади,Палац підводного спорту, футбольний стадіон, спортивні зали, магазини, відділення банку, школи, дитячі садочки, «Арт-завод Платформа», ТЦ Проспект 20 хв пішки, Ашан та ін.

Окремі кімнати, кухня 11 кв.м. Стан після будівельників, стяжка підлоги, штукатурка, лічильники на воду, світло, тепло, радіатори опалення.

Можливе придбання паркомісця у підземному паркуванні на території комплексу.
У будинку є автономна котельня, закрита територія.
Консьєрж, 3 ліфти. З квартири відкривається вид на затишний двір. Будинок із цегляними стінами, виконаний за монолітно-каркасною технологією. Зовнішні стінки утеплені мінеральною ватою. Поблизу ЖК є парк, магазини, кафе, салони краси, офіси. Є місця для заняття спортом, дитячі майданчики, школи.

Зручна транспортна розв'язка, яка дозволяє легко потрапити в будь-яку точку міста.
Станція метро "Чернігівська" - 10 хвилин автотранспортом.

Будинок введений в експлуатацію!!!


Мітки: цікавий, перевідступлення
Населений пункт:
Київ
Район нас. п.:
Дніпровський район
Масив:
масив Стара Дарниця
Вулиця:
вулиця Сосюри Володимира
Будинок:
6
Метро:
метро Дарниця
ЖК:
ЖК Дніпровська мрія (будується)
  • Розташування вікон: одностороння
  • Санвузол: 2 санвузли
  • Матеріал стін: цегла
  • Тип вікон: металопластикові
  • Вхідні двері: броньовані
  • Кухонна плита: електрична
  • Кількість балконів або лоджій: 1
  •   03-04-2026 12:05
  • Поділитися:

Подібні об`єкти

57 000 $
ексклюзив
без комісії
цікавий
Квартири (продаж)

Дарницький район, шосе Харківське, 63

Доданий: 10-04-2026 14:25

  • Кімнат: 1
  • Площа: 39 м2
  • Поверх: 1/16
  • Масив: масив Червоний Хутір (Красний Хутір)

Знайди свою нерухомість

Ціна ($):
Площа:
Поверх:     
Кімнат:            

Курс валют


USD - 43.5 грн
Продажа квартир в Киеве на R24.ua  Портал нерухомостi Realt.ua: купити квартиру в Києві продаж квартир в Києві

Контакти

Підписка

Підпишіться, щоб отримувати останні новини

Вы успішно підписані!
Такій користувач вже існує
;