(10731_ORH) Сдаётся офис Голосеевский район, проспект Голосеевский, 132, метро Выставочный центр

10 000 $ (+ коммунальные)
  • Комнат: 5
  • Площадь: 900 м2
  • Этаж/этажность: 3/16
  • Планировка: кабинетная система
  • Состояние: евроремонт
  • Фонд: нежилой

Сдаётся офис помещение. Голосеевский район, проспект Голосеевский, 132, метро Выставочный центр

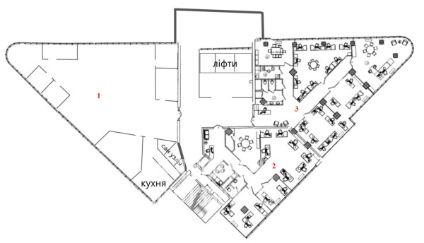
Цілий поверх можливостей у серці Голосіївського району!

Пропонуємо в оренду ексклюзивний офісний простір площею 900 м² у сучасному Бізнес-Центрі «Реле», метро Виставковий центр - 5 хвилин.  Це не просто офіс — це цілий поверх, спроектований для ефективної роботи, приватності та комфорту вашої команди.

Простір розбитий на зручні блоки, які ідеально підходять для розміщення відділів, переговорних, лаунж-зон або робочих кабінетів. Гнучке планування дозволяє адаптувати офіс під будь-які бізнес-завдання — від IT-компанії до юридичного холдингу.

Локація: Голосіївський район — один з найзеленіших і динамічно розвиваючихся районів Києва. Зручна транспортна розв'язка, метро в пішій доступності, розвинена інфраструктура.

БЦ «Реле» — сучасна будівля з якісною інженерією, цілодобовою охороною, системою контролю доступу та парковкою.

Ідеально підійде для:

 - компанії від 50 до 100 співробітників;

- бізнесу, який цінує приватність (цілком закритий поверх);

- орендарів, яким важлива масштабованість і можливість зонування;

Не пропустіть можливість перевести свій бізнес на новий рівень.

Бізнес починається з правильного простору.

Ціна оренди: 10000$, можлива оренда окремих блоків.

 

 

 

 


Населённый пункт:
Киев
Район нас. п.:
Голосеевский район
Массив:
массив Теремки-2
Улица:
проспект Голосеевский
Дом:
132
Метро:
метро Выставочный центр
  • метро
  • остановка
  • супермаркет / магазин
  • зелёная зона
  • паркинг
  • кафе / ресторан
  •   02-12-2025 10:45
  • Поделиться:

Найди свою недвижимость

Цена ($):
Площадь:
Этаж:     
Комнат:            

Курс валют


USD - 41.5 грн
Продажа квартир в Киеве на R24.ua  Портал нерухомостi Realt.ua: купити квартиру в Києві Сайт нерухомості Nedviga-pro - операції з нерухомістю продаж квартир в Києві

Контакты

Подписка

Подпишитесь, что бы получать последние новости

Вы успешно подписаны!
Такой пользователь уже существует
;